╱案例簡介 Case description╱
【項目名稱】:瀚林甲第
【項目面積】:166㎡
【設計風格】:輕奢風格
【設計主創】:吳小立
╱案例初印象Impression╱
家,沒有多么耀眼的光澤
但也充滿未來祈盼的幸福
家,沒有霓虹飛瀉的繁華
卻充滿著人與人之間的親情紐帶
流淌的親情,漫布的幸福
溫暖著你的人
也暖著你的心
這充滿暖色調的家
給您點亮平淡而溫暖的生活
╱設計詮釋annotation╱
一縷和煦的陽光,照亮你的家。木色與大理石,不僅能襯托陽光的溫暖,在視覺上還有較強的延展性,相同色系的墻壁將整個家居空間合為一個統一整體,帶給居住者不一樣的視覺享受。
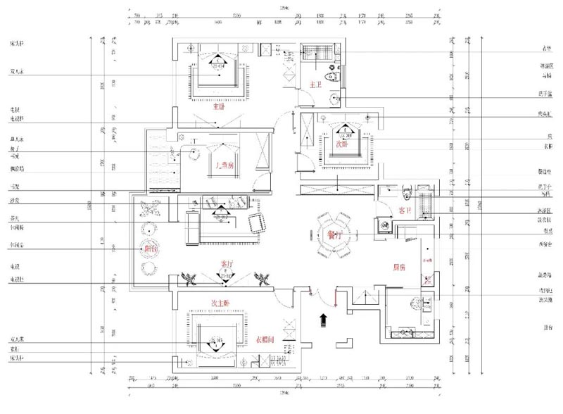
丨平面圖—Plan丨

丨客廳—Living Room丨
暖咖色家具配上溫暖的燈光讓整個空間明亮而不失溫馨,歐式的典雅雕塑搭配現代感十足的大理石電視墻在混搭中吐露出一種對于設計的無上追求。
丨餐廳—Dining Room丨
深咖色的餐桌凳與墻面的木紋柜子顏色和諧融合,造型流線感十足的吊燈下將不同的燈光效果映襯到每一個墻面之上。
丨玄關—vestibule丨
雖然通鋪的地面并沒有分開兩個空間的區域,但是抬頭望去,不同效果的吊頂到是將人們的視線引入了一個美好的造型空間,同樣的風格,不同的效果,相近的顏色,和諧的效果。
丨臥室—Bedroom丨
兒童房,主臥,客臥,三種風格三種對于生活的不同理解,對于臥室來說,舒適永遠是放在第一位的,因為有了這些對于生活的深刻理解,才有了人們不斷孜孜追求的奢享空間。
溫暖的幸福,溫暖的夢,溫暖的家居創造溫暖的人生