本案為金舍裝飾~大者別墅200平米底躍現代風格裝修效果圖,擁抱現代生活,將東方氣質大隱隱于工藝,材料及配色的交感呼應中。成就東方感、現代家,讓空間變得清新優雅,將現將傳統文化結合到住宅。創造出富有內涵的未來東方雅奢居住空間,追求極致的品質細節的設計與把控。從點滴之處感受到并為之向往的高品質的生活方式。給人們帶來舒適愜意的生活美學。如何將自然、人文與藝術融合。重塑人們對既有“閑憩生活”的認知,讓居住回歸詩意。人生不在初相逢,洗盡鉛華也從容。



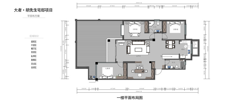
大者別墅200平米底躍現代風格裝修效果圖

大者別墅200平米底躍現代風格裝修效果圖

大者別墅200平米底躍現代風格裝修效果圖

大者別墅200平米底躍現代風格裝修效果圖

大者別墅200平米底躍現代風格裝修效果圖

大者別墅200平米底躍現代風格裝修效果圖

大者別墅200平米底躍現代風格裝修效果圖

大者別墅200平米底躍現代風格裝修效果圖

大者別墅200平米底躍現代風格裝修效果圖

大者別墅200平米底躍現代風格裝修效果圖

大者別墅200平米底躍現代風格裝修效果圖