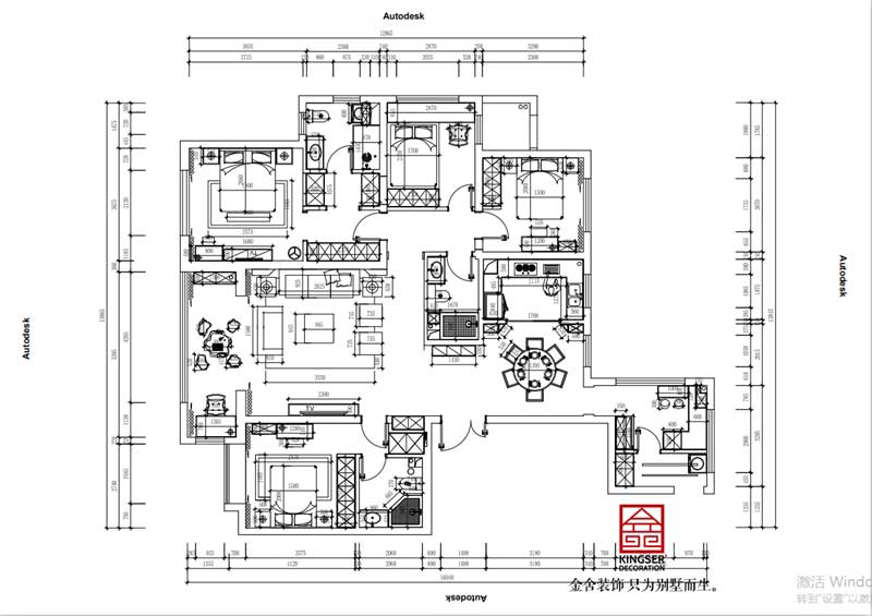
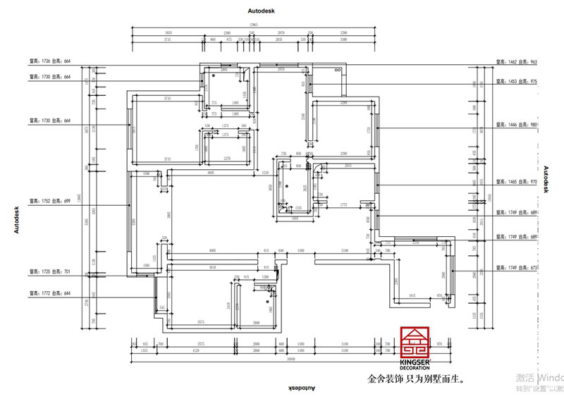
榮盛華府185平米戶型改造設計
改造前說明:
1.戶型南北通透、明快、寬敞。結構合理,大宅風范。
2.廚房空間較小,不能夠滿足主人的生活需求。
3.客廳空間敞亮,可增加空間利用率。
4.入戶門]旁沒有放鞋柜的位置。
改造后說明:
1.新增的一 個臥室空間,以及主臥門口的調整,都使得收納空間更大強大。
2.西廚空間的出現豐富擴大了整個烹飪及用餐空間,他與洗衣間的合理劃分充分滿了主人對生活的需求
3.次臥的]口的調整不光巧妙的增加了個鞋柜與展示柜還使得次臥擁有了一個可以放行李箱的大儲物空間,使空、間更加舒適,便捷。
榮盛華府185平米戶型改造設計-原始平面圖

榮盛華府185平米戶型改造設計-平面布置圖