碧桂園
別墅裝修260平米戶型解析
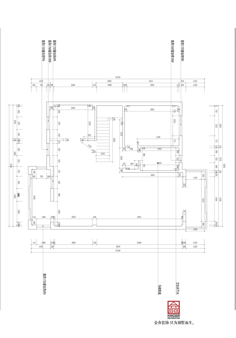
改造前說明:完美的別墅不應該缺失玄關,很多多余的墻體給人一種雜亂的感覺,太大的空間過于浪費,需要進行改造更新。
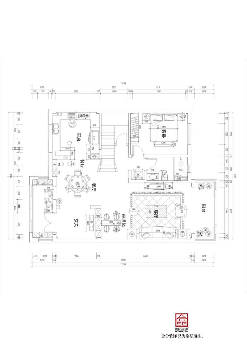
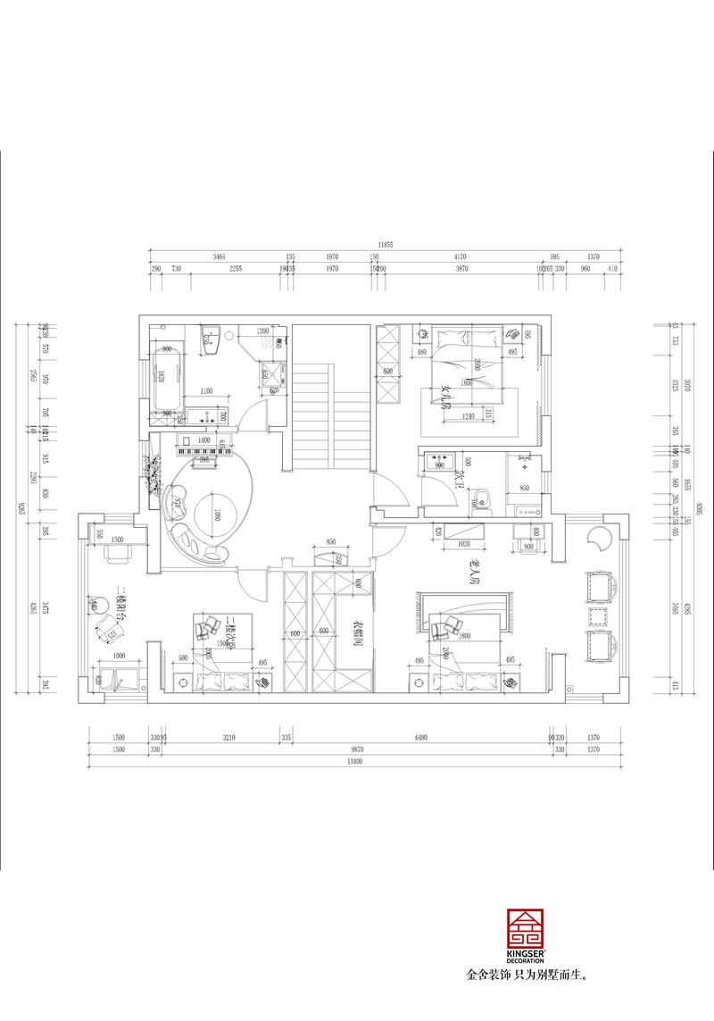
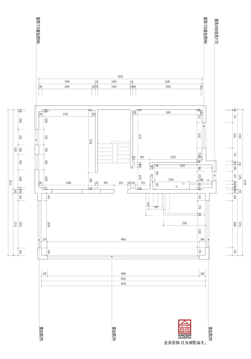
改造后說明:入戶門增加休閑桌椅,給人一種回家的感覺,入戶增加玄關,既能增加美感又可以加大儲物空間放置酒柜。開放式廚房增加吧臺,滿足主人的多重需求,二樓空間過于浪費,根據使用情況隔出兩個寬敞的臥室,同時還能有一個琴室滿足需求。三樓設計溫泉提高格調和氛圍,彰顯主家人的氣質和情調。
?

碧桂園別墅裝修260平米戶型一層原始平面圖

碧桂園別墅裝修260平米戶型一層平面布置圖

碧桂園別墅裝修260平米戶型二層原始平面圖

碧桂園別墅裝修260平米戶型一層平面布置圖

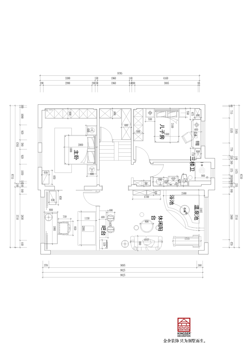
碧桂園別墅裝修260平米戶型三層原始平面圖

碧桂園別墅裝修260平米戶型三層平面布置圖