小區:榮盛華府
面積:178平米
設計風格:極簡風格
設計師:武瑤

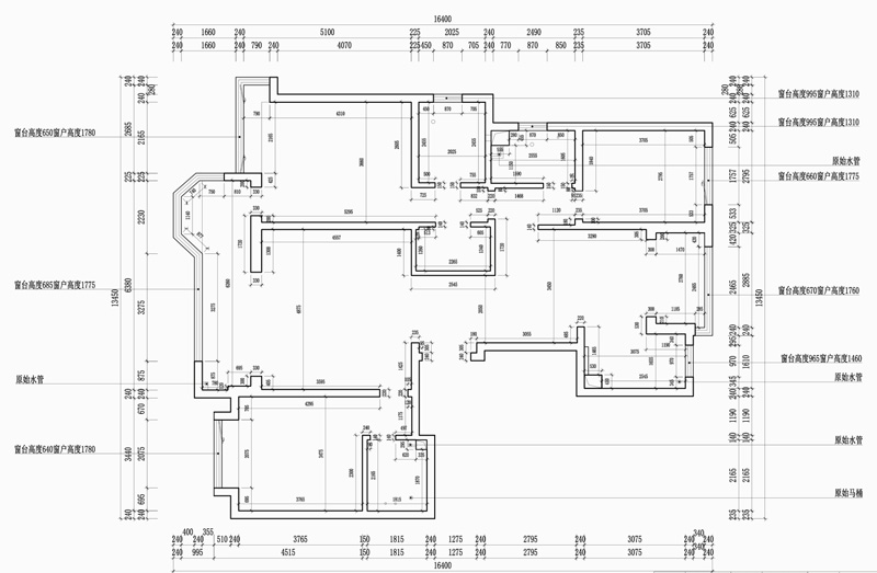
圖榮盛華府178平原始戶型圖

榮盛華府178平平面布置圖
戶型優缺點分析:
1.戶型南北通透、寬敞明亮。結構合理,大宅風范。
2.餐廳空間敞亮,可增加空間利用率。
3.玄關空間不夠大氣,不是很舒適,可利用空間拆改讓玄關變的更加舒適,敞亮。
戶型改造后:
1.應業主要求去掉了衣帽間,使客廳以及餐廳最大限度的利用了空間,整體看上去更加通透舒適。
2.改造了專門的洗衣房收納空間,使整個空間居室更簡潔整潔。
更多
榮盛華府戶型分析盡在金舍裝飾http://www.cheerfond.com/hxfx-25-5-0-desc-%20/p_1.html